大连明哲智能家居有限公司

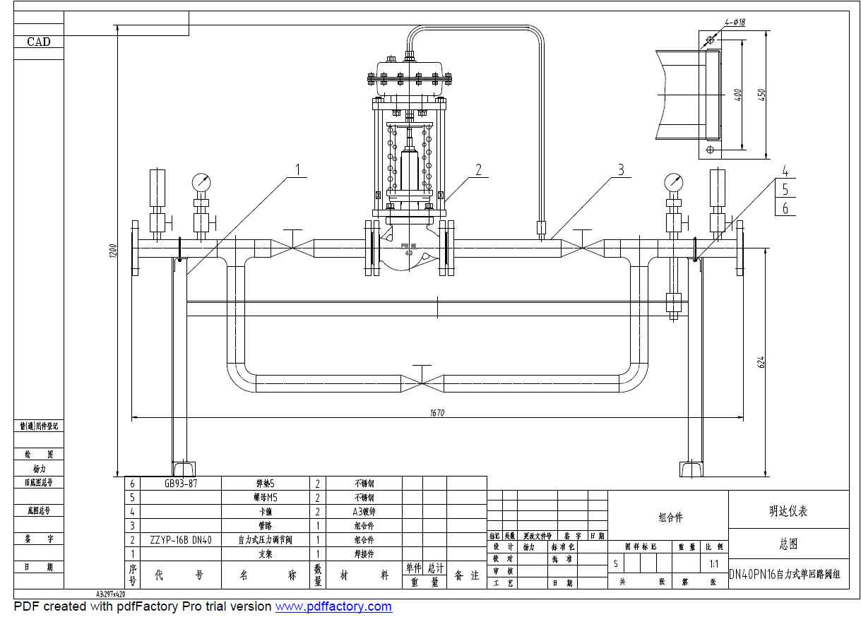
单回路减压装置

详细介绍

Copyright©2005-2020  版权所有 大连明哲智能家居有限公司   


大连明哲智能家居有限公司 版权所有
Copyright©2005-2020